Внутренняя отделка частного дома: штукатурка, плитка, покраска, полы и потолки
Содержание
Внутренняя отделка — заключительный и один из самых ответственных этапов строительства частного дома. Именно от качества финишных работ зависит, насколько комфортным и красивым будет жильё. К основным видам внутренней отделки относят штукатурные, плиточные и малярные работы, а также устройство потолков и полов.
Прежде чем приступать к внутренней отделке частного дома, необходимо завершить все основные строительные работы:
- возвести стены, смонтировать кровлю и обустроить черновые полы;
- проложить стояки водоснабжения, канализации и, при необходимости, газоснабжения;
- установить электрощит с устройством защитного отключения (УЗО) и проложить электропроводку (без подключения к сети);
- остеклить оконные проёмы;
- организовать сухие прохладные места для хранения лакокрасочных материалов, растворителей и сыпучих отделочных смесей.
Штукатурные работы
Штукатурка — обязательный подготовительный этап перед покраской или оклейкой обоями. Цель — выровнять стены так, чтобы все поверхности были ровными, а углы составляли строго 90°. Нарушение геометрии на этом этапе неизбежно скажется на качестве всей последующей отделки.
Штукатурные работы требуют определённых профессиональных навыков. Опытный мастер способен оштукатурить около 20 м² за рабочий день, тогда как новичок, скорее всего, осилит не более половины этого объёма. Кроме того, это один из самых пыльных видов работ — заранее позаботьтесь о таре для строительных отходов.
Порядок выполнения штукатурных работ
- Определите толщину штукатурного слоя. Она зависит от неровностей стен. При высоте помещения 3 м перекос может достигать 3 см, а толщина наброса — варьироваться от 0,5 до 3,5 см по площади поверхности.
- Рассчитайте нужный объём раствора. Умножьте площадь стены на среднюю толщину слоя — это позволит определить необходимое количество сухой смеси.
- Подготовьте инструмент и материалы: штукатурную смесь, маяки, правило, тёрку, шпатели, ёмкости для раствора.
- Установите маяки на раствор из гипса или алебастра, выставив их строго по уровню.
- Нанесите штукатурку в правильной последовательности:
- набросьте черновой слой толщиной 0,5–1 см и разровняйте поверхность;
- при толщине слоя свыше 3 см закрепите штукатурную сетку;
- нанесите чистовой слой штукатурки и окончательно выровняйте поверхность тёркой или правилом.
- Проверьте оштукатуренную поверхность. При необходимости выровняйте её затиркой во влажном состоянии, убирая излишки или добавляя раствор.
- Зашпатлюйте поверхность для подготовки к финишной отделке.
Порядок штукатурных работ
Очерёдность штукатурки помещений
Начинают с санузлов, затем переходят к жилым комнатам. Профессиональные бригады работают поточным методом: принимают за «захватку» этаж дома и перемещаются по заданному маршруту. Направление работ — от внутренних помещений к парадному входу, от подвала к основному этажу, от верхних этажей к нижним.
После завершения штукатурки выполняют цементную стяжку под полы. Только после этого приступают к оклейке обоями или покраске стен.
Плиточные работы
Плитку укладывают на заранее подготовленную и выровненную поверхность. Эти работы можно вести параллельно со штукатуркой и отделкой в других помещениях. Как правило, облицовку плиткой выполняют в санузлах и кухнях, а после неё приступают к настилу полов.
Порядок плиточных работ
Укладка плитки требует навыков и аккуратности, поэтому этот вид отделки часто доверяют опытным мастерам. Тем не менее при наличии времени и желания с задачей можно справиться самостоятельно.
Основные способы укладки плитки
Технология плиточных работ насчитывает многовековую историю. Несмотря на огромное разнообразие вариантов оформления, в их основе лежат три базовых способа укладки:
- а — шов в шов;
- б — вразбежку;
- в — по диагонали шов в шов;
- г — по диагонали вразбежку.
Отдельного внимания заслуживает мозаичная укладка — сложная техника, которую выполняет только мастер высокой квалификации.
Для мозаики подойдёт всё: от целых плиток любого размера до их боя.
Расчёт количества плитки и подготовка
Перед облицовкой важно точно определить необходимое количество плитки. Для этого составьте простой чертёж с указанием расположения каждого ряда. Грамотный расчёт позволит свести к минимуму обрезку и упростить весь процесс. Если целого числа плиток не получается — их нарезают. Срезы должны быть гладкими и ровными; при необходимости их дополнительно обрабатывают.
Раскладка плитки по стенам
Требования к основанию и процесс укладки
Поверхность под плитку должна быть идеально ровной, без пустот и раковин, тщательно очищенной от пыли и мусора. Стены облицовывают снизу вверх, пол — от дальнего угла к выходу.
Стена под плитку должна быть идеально ровной
Перед креплением плитки необходимо выверить и установить вертикальные направляющие, а также приготовить клеевой раствор. Лучше всего использовать специальный плиточный клей, который наносят зубчатым шпателем на стену или пол.
Нанесение клея на облицовываемую поверхность
Плитку размещают на клеевом слое, выравнивают и вдавливают, слегка простукивая резиновым молотком (киянкой). Излишки раствора удаляют до его затвердевания. Через сутки после облицовки швы заполняют затирочной смесью.
Малярные работы
Окраска поверхностей — самый простой, но и самый «грязный» вид внутренней отделки. Малярные работы вполне по силам выполнить самостоятельно. Традиционно процесс делят на два этапа:
- Шпатлёвка и окончательное выравнивание стен.
- Собственно окраска.
Перед началом работ ознакомьтесь с инструкцией к выбранным краскам и рассчитайте расход материалов исходя из площади помещения.
Температурно-влажностные требования
Для нормального высыхания краски в помещении необходимо поддерживать:
| Параметр | Значение |
|---|---|
| Влажность воздуха | не выше 70 % |
| Температура воздуха | не ниже +18 °С |
| Влажность материала стен | 8–12 % |
Инструменты и техника нанесения
Вам понадобятся: шпатели, кисти, валики, линейки, шнур, ёмкости для разведения красок. Перед нанесением поверхность должна быть очищена от грязи и тщательно высушена.
В жилых помещениях применяют различные виды красок: водоэмульсионные, акриловые, латексные, алкидные и другие. Как правило, покрытие наносят минимум в два слоя: нижний обеспечивает адгезию с основанием, верхний — декоративную функцию. Точное количество слоёв указывает производитель (иногда требуется до шести нанесений).
Порядок окрашивания:
- Сначала прокрашивают грани, углы и труднодоступные места кистью.
- Затем обрабатывают гладкие поверхности валиком.
- Свеженанесённый слой сглаживают плоской кистью из щетины.
Для больших площадей удобно использовать краскопульт (пневматический распылитель) — он значительно ускоряет процесс. Неокрашиваемые поверхности защищают малярным скотчем и полиэтиленовой плёнкой.
Неподготовленный человек способен качественно покрасить около 20 м² в день. Привлечение специалистов сократит сроки, но потребует дополнительных затрат.
Отделка потолков
Правильно подобранная отделка потолка способна задать тон всему интерьеру. Современные материалы и технологии позволяют реализовать практически любое дизайнерское решение. Все варианты отделки потолков можно разделить на две группы: без дополнительных конструкций и с ними.
Потолки без дополнительных конструкций
Самые простые варианты — окраска и оклейка обоями. Поверхность предварительно выравнивают штукатурной смесью, шпатлюют, после чего красят водоэмульсионной краской или оклеивают обоями.
Интересный визуальный эффект позволяют получить жидкие обои — их наносят на потолок штукатурным инструментом. Покрытие приобретает фактуру и необычный внешний вид, допускает разнообразные цветовые сочетания.
Потолки с дополнительными конструкциями
К ним относятся подвесные, реечные и натяжные потолки.
Устройство потолка из декоративных плит
Подвесной потолок из гипсокартонных листов в различных помещениях
Устройство реечного потолка
Подвесной потолок строится на жёстком каркасе из металлического профиля или дерева, который крепится к существующему перекрытию. Каркас облицовывают декоративными панелями из пластика, зеркальных плит, реек или гипсокартона. Такая конструкция позволяет:
- создавать перепады уровней и устраивать встроенную подсветку;
- комбинировать несколько видов материалов;
- скрывать коммуникации (электрику, вентиляцию, кондиционирование);
- легко заменять отдельные модули при ремонте.
Натяжные потолки — наиболее эффектный вариант. Они могут принимать самые разнообразные формы: арки, ярусы, шатры; бывают многоуровневыми и многогранными. Монтаж выполняется следующим образом: полотно, изготовленное по индивидуальным размерам, с приваренной по краям ПВХ-пластиной нагревают тепловой пушкой до эластичного состояния и фиксируют в багете по периметру потолка.
Отделка полов
Устройство полов — один из самых трудоёмких процессов внутренней отделки. Основание под полы подготавливают до начала отделочных работ, а финишное покрытие укладывают после завершения окраски стен и оклейки обоев.
Что нужно завершить перед укладкой полов
- Возведение стен, устройство кровли и организация чернового пола.
- Прокладка и приёмка инженерных коммуникаций: монтаж и опрессовка систем отопления, водоснабжения и газоснабжения.
- Штукатурка, облицовка, окраска и оклейка стен; окраска несущих металлоконструкций и открытых трубных разводок; отделка потолков.
- Заделка швов между сборными плитами перекрытий и щелей в местах примыканий.
Конструкция пола — послойно
Пол состоит из следующих слоёв (снизу вверх):
- Основание — грунт или конструкция перекрытия.
- Подстилающие слои — гравий, щебень, песок, шлак, керамзитобетон.
- Стяжка (черновой пол или основание под покрытие).
- Гидро- и теплоизоляция.
- Финишное напольное покрытие.
Бетонная стяжка с дорожной сеткой — наиболее распространённое основание для полов
Каждый следующий слой укладывают только после проверки качества предыдущего с составлением акта на скрытые работы.
Важные правила устройства полов
- Уклоны полов обеспечивают за счёт стяжки переменной толщины.
- Все поверхности подстилающих слоёв, стяжек и плит перекрытий перед укладкой на них монолитных покрытий или клеевых прослоек необходимо очистить от строительного мусора и пыли.
- Для равномерного набора прочности подстилающие слои, стяжки и монолитные покрытия на цементном вяжущем рекомендуется накрывать влажным водоудерживающим материалом на 7–10 дней. Простейший вариант — полиэтиленовая плёнка, которая предотвращает быстрое испарение влаги.
Подготовка грунтового основания
Если пол устраивают по грунту, необходимо:
- Снять верхний плодородный слой почвы.
- Просушить глинистые и суглинистые грунты, насыщенные водой.
- При недостаточном уровне — выполнить подсыпку: земляную смесь укладывают равномерно и утрамбовывают вручную или механически слоями не более 100 мм. Использование грунта с примесью строительного мусора, снега или льда не допускается.
- Поверх земляного основания насыпать слой песка толщиной 10–15 см.
Подстилающие слои
На подготовленное основание поочерёдно укладывают подстилающие слои с учётом особенностей каждого материала:
| Материал | Толщина слоя | Условия укладки |
|---|---|---|
| Щебень, гравий | 80–200 мм | Влажность 5–7 % |
| Песок | 50–100 мм | Уплотнение при влажности 7–10 % |
| Глинобитно-щебёночные или глинобитно-гравийные смеси | до 100 мм | Уплотнение до появления капелек влаги на поверхности |
| Бетонные смеси (класс В20, В30 или В40) | по расчёту | Укладка при температуре не ниже +5 °C на увлажнённый непромёрзший грунт |
Укладка подстилающих слоёв по грунту
Подстилающие слои, как правило, укрепляют арматурной сеткой с ячейкой 50×50 мм и диаметром проволоки 3 мм. При устройстве оклеечной или обмазочной гидроизоляции поверхность затвердевшего бетона необходимо загрунтовать.
Звуко- и теплоизоляция
Для утепления и звукоизоляции полов используют пенополистирол, сыпучие материалы (керамзит, шлак) или минераловатные плиты.
Звуко- и теплоизоляция полов на грунте:
- а — из пенополистирола;
- б — из сыпучих материалов;
- в — из минераловатных плит.
Основные правила укладки:
- Сыпучие материалы рассыпают по перекрытиям или грунту, разравнивают до толщины 60 мм и уплотняют.
- Плитные утеплители укладывают ровными рядами вплотную к стенам и друг к другу — насухо или на битумную мастику.
- При многослойной изоляции швы располагают вразбежку.
- Если поверх звукоизоляции устраивают стяжку, между стеной и полом оставляют компенсационный зазор: 15–25 мм для стяжки, 10–15 мм для деревянного пола, 4–5 мм для полимерных покрытий. Зазоры заполняют звукоизоляционным материалом (минеральной ватой и т. п.).
Устройство стяжки
Цементно-песчаная стяжка укладывается равномерным слоем толщиной 30–60 мм на подготовленное основание по маякам или ограничительным рейкам. Неровности более 5 мм сглаживают раствором марки не ниже М100. Места примыкания стяжки к стенам и перегородкам изолируют прокладками из рулонных гидроизоляционных материалов. Температура воздуха при укладке — не менее +15 °C.
Выравнивание пола
Самовыравнивающуюся стяжку на основе гипса и пластифицирующих добавок укладывают с учётом возможного вспучивания раствора при температуре +15…+30 °C. После снятия маяков торцевые поверхности готовых участков грунтуют или увлажняют, рабочие швы сглаживают, чтобы они не были заметны.
Стяжка из цементно-песчаных растворов
Сборная стяжка выполняется из листов гипсокартона или древесноволокнистых плит. Она допускается в отапливаемых помещениях при устойчивой относительной влажности воздуха не выше 60 %. Листы укладывают вплотную в два слоя толщиной не более 20 мм каждый. Стыки проклеивают полосами плотной бумаги или малярным скотчем шириной 40–60 мм, щели верхнего слоя заливают битумной мастикой или герметиком. Отклонение от горизонтали не должно превышать 0,2 %.
Стяжка из гипсокартонных и древесноволокнистых листов
Перед нанесением грунтовок или клеевых составов поверхность стяжки необходимо обеспылить. Обрабатывают весь пол, подбирая состав, совместимый с материалом вышележащего слоя.
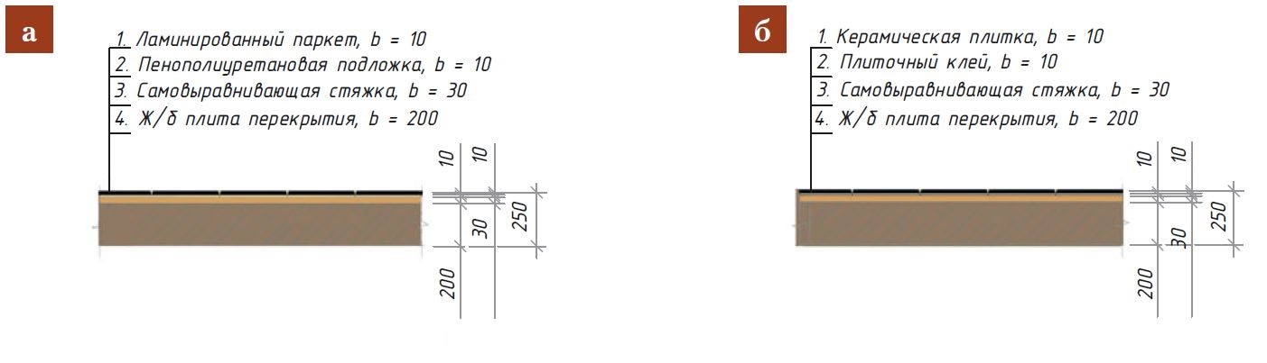
Распространённые конструкции полов
Конструкции полов:
- а — ламинированный;
- б — из керамической плитки;
- в — из керамогранитной плитки;
- г — наливной.
Устройство чистового пола
Большинство мастеров рекомендуют выполнять отделочные работы сверху вниз: сначала потолок, затем стены, в последнюю очередь — полы. Однако есть важный нюанс: до начала чистовой отделки необходимо уложить все подстилающие слои пола — стяжку, утепление, гидроизоляцию. Только после этого приступают к финишным работам: окрашивают или оклеивают потолки, красят стены или наклеивают обои, а завершают укладкой напольного покрытия. Такая очерёдность позволяет не повредить уже готовые полы.
Как выбрать напольное покрытие
Выбор материала определяется стилистикой интерьера и условиями эксплуатации помещения:
| Помещение | Рекомендуемые покрытия | Обоснование |
|---|---|---|
| Прихожая | Керамическая плитка, керамогранит | Влагостойкость, лёгкость в уходе |
| Открытая терраса | Массив дерева с антисептической пропиткой | Нескользкая поверхность зимой |
| Санузел, кухня | Плитка всех видов и форм | Устойчивость к влаге и загрязнениям |
| Жилые комнаты | Штучный паркет, массивная доска, ламинат | Экологичность, ощущение тёплого пола |
| Жилые комнаты (выше 1 этажа) | Ковролин | Комфорт, мягкость (учитывайте сложность чистки) |
Рекомендуемые виды материалов для отделки полов
Укладка керамической плитки на пол
Плитку укладывают сразу после нанесения клеевой прослойки из цементно-песчаного раствора (толщиной 15–20 мм), бетона или мастики. Ряды выкладывают ровно, с шириной швов 5–8 мм. До начала работ плитку выдерживают не менее двух суток при температуре не ниже +10 °C. Выступивший из швов раствор удаляют до затвердевания. В «мокрых» зонах (ванная, санузел, кухня) сначала укладывают гидроизоляцию и выравнивающую стяжку, а поверх — плитку.
Укладка керамической плитки
Укладка рулонных материалов (линолеум, ковролин)
Рулонные покрытия приклеивают на основание, предварительно утеплённое вспененным пенополистиролом и выровненное стяжкой.
Перед укладкой полотна обязательно расстилают и выдерживают до полного исчезновения заломов:
- при транспортировке и хранении при 0…+10 °C — раскатывать через сутки после выдержки в тёплом помещении;
- при температуре ниже 0 °C — через двое суток.
Поверхность стяжки перед укладкой выравнивают, шлифуют, грунтуют и просушивают. Влажность цементной стяжки должна быть не более 4 %. Полотна размещают вдоль направления движения людей. Толщина клеевого слоя — не более 0,8 мм. Покрытие должно лежать ровно, без волн, вздутий и перегибов.
Приклеивание линолеума на заранее выровненное основание
Приклеивание ковролина
Устройство деревянного пола
При настиле деревянного пола ключевое значение имеет правильная установка лаг:
- Длина лаг — не менее 2 м.
- Толщина и ширина при опоре на плиты перекрытия — 40 × 80–100 мм; при опоре на отдельные столбики — 40–50 × 100–120 мм.
- Расстояние между осями лаг — 0,4–0,6 м.
- Лаги укладывают перпендикулярно основному направлению движения в комнате, соединяют торцами со сдвигом стыков в смежных лагах не менее чем на 0,5 м.
- Между лагами и стенами оставляют зазор 20–30 мм.
Устройство деревянного пола
Доски крепят к каждой лаге гвоздями, длина которых в 2–2,5 раза превышает толщину доски. Паркетные щиты фиксируют гвоздями длиной 50–60 мм, забивая их под наклоном в нижнюю щёку паза. Шляпки утапливают. Забивать гвозди в лицевую поверхность покрытия недопустимо.
Стыки торцов досок и паркетных щитов располагают строго на лагах.
Укладка штучного паркета
Толщина клеевого слоя — не более 1 мм, площадь приклейки паркетной плитки — не менее 80 %. Клеевую мастику наносят полосами шириной 100–200 мм по периметру плит и в средней зоне с интервалом 300–400 мм.
Укладка паркета
Укладка ламината
Ламинированный паркет укладывают по инструкции производителя, но всегда на предварительно настеленную подложку из вспененного пенополистирола или другого рекомендованного материала.
Устройство ламината
Сборка ламината
Обход труб при укладке паркета
Проверка качества
После завершения укладки напольного покрытия необходимо провести контроль качества. Поверхность должна быть однородного цвета, без вмятин, трещин, волн, вздутий, приподнятых кромок и других видимых дефектов.
Как проверить качество пола
- Простукивание. Сцепление плиточных материалов с основанием проверяют постукиванием в центре условных квадратов размером не менее 500×500 мм. Звук должен быть одинаковым по всей площади — глухой тон сигнализирует о пустоте под плиткой.
- Проверка ровности. Отклонения поверхности от плоскости контролируют строительным уровнем или правилом. Замеры выполняют не менее пяти раз на каждые 50–70 м² поверхности.
Допустимые отклонения от плоскости
| Тип покрытия | Максимальное отклонение |
|---|---|
| Керамическая плитка | 4 мм |
| Рулонные материалы и ковры | 4 мм |
| Деревянные полы (паркет, доска, ламинат) | 2 мм |
Тщательная проверка на этапе приёмки позволит вовремя выявить и устранить дефекты, обеспечив долговечность и безупречный внешний вид напольного покрытия.
