Содержание

Столовая — помещение для семейных трапез и приёма гостей, которое проектируется с учётом количества членов семьи, габаритов обеденной мебели и требований к проходам. Правильная планировка обеспечивает комфортную рассадку, удобный доступ к кухне и приятную атмосферу за столом.

Расположение столовой в доме

Столовую рекомендуется размещать с южной, юго-восточной, западной или юго-западной стороны дома — максимальная ориентация к естественному освещению создаёт светлое и уютное пространство для приёма пищи.

Рекомендации по размещению

Критерий Рекомендация
Соседство Рядом с кухней — для удобной сервировки; рядом с гостиной — для семейных торжеств
Совмещение В семьях до четырёх человек отдельная столовая не обязательна — обеденную зону организуют на кухне
Освещение Южная и юго-восточная ориентация окон обеспечивает максимум естественного света

Принцип расчёта площади

Площадь столовой определяется тремя факторами:

  1. Обеденный стол и стулья — ключевой элемент, задающий габариты помещения.
  2. Проходы — минимальная ширина между мебелью 70 см для свободного перемещения и отодвигания стульев.
  3. Дополнительная мебель — комод, посудный шкаф, навесные полки, этажерка.

Минимальная ширина помещения — 3 м (по строительным нормам).

Столовая на пять человек

Схема планировки столовой на пять человек с расчётом площади и двумя вариантами размещения проёмов

  • а — расчёт площади по габаритам стола и зоне прохода (70 см);
  • б — вариант с противоположным расположением оконного и дверного проёмов;
  • в — вариант с угловым расположением проёмов.

Обозначения: 1 — стол и стулья; 2 — комод; 3 — посудный шкаф; 4 — навесные полки.

Методика расчёта

  1. Определяют площадь, занимаемую столом и стульями.
  2. Вокруг обеденной группы закладывают зону прохода 70 см.
  3. Малую сторону комнаты увеличивают до рекомендованных 3 м.
  4. Результат для пяти человек: внутренние размеры 3 × 4,2 м (≈ 12,6 м²).
  5. Размещают дополнительную мебель (комод, посудный шкаф, навесные полки).
  6. Определяют расположение оконных и дверных проёмов.

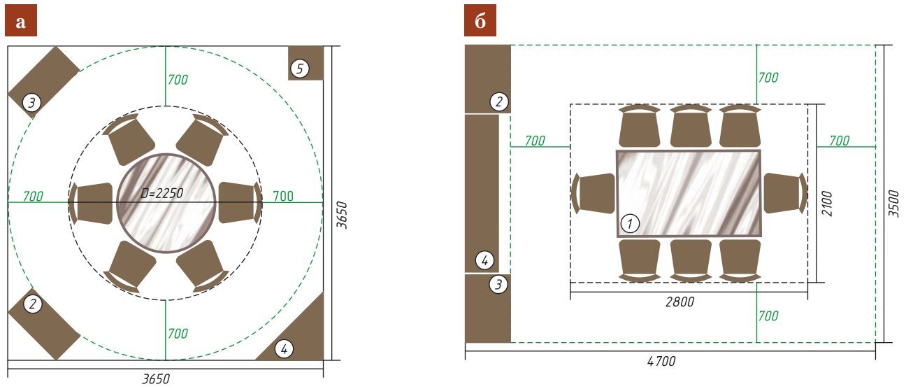
Столовая на шесть и восемь человек

Аналогичный принцип применяется для большего числа членов семьи: увеличивается размер стола, соответственно растёт и площадь помещения.

Планировка столовой на шесть человек с расстановкой мебели и размещением проёмов

Планировка столовой на восемь человек с расстановкой мебели и размещением проёмов

  • а, в — для шести человек;
  • б, г — для восьми человек.

Обозначения: 1 — стол и стулья; 2 — комод; 3 — посудный шкаф; 4 — навесные полки; 5 — этажерка.

Рекомендации по проектированию

Параметр Рекомендация
Минимальная ширина комнаты 3 м
Ширина проходов Не менее 70 см
Отдельная столовая Целесообразна для семей от пяти человек
Ориентация окон Юг, юго-восток, юго-запад — максимум естественного света
Соседство с кухней Обязательно — для удобства сервировки и уборки

Итог

Проектирование столовой начинается с определения количества посадочных мест и размеров обеденного стола. Вокруг стола закладываются проходы шириной не менее 70 см, затем размещается дополнительная мебель и определяется расположение проёмов. Для семей до четырёх человек обеденную зону удобнее организовать на кухне, для пяти и более — выделить отдельную столовую с южной или юго-западной ориентацией окон.